Apartmány pri Trogire
- 220 m od mora
- elektrina, voda, kanalizácia
- klimatizácia
- výhľad na more
Na predaj je krásny penthouse v novostavbe situovaný na pokojnej lokalite, len 220 metrov od mora a štrkovej pláže. Nehnuteľnosť sa nachádza vo veľmi atraktívnej oblasti, iba 4,5 km od historického centra Trogiru a 9,5 km od Letiska Split, čo zaručuje výbornú dostupnosť aj investičný potenciál.
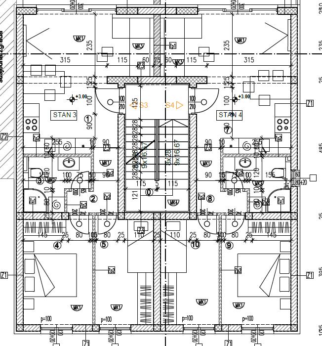
Rezidenčný projekt tvorí dvojdom moderného dizajnu, pozostávajúci z dvoch prepojených objektov – menšia budova s 3 apartmánmi a väčšia budova so 6 apartmánmi. Projekt je navrhnutý s dôrazom na komfort, estetiku a stredomorský životný štýl.
Apartmány na druhom poschodí ponúkajú otvorený výhľad na more, apartmány na prvom poschodí majú čiastočný výhľad na more. Ku každému apartmánu patrí vlastné parkovacie miesto, ktoré je zahrnuté v cene.
Penthouse S3 – menšia budova
Na druhom poschodí menšej budovy sa nachádza penthouse S3, ktorý pozostáva z:
kuchyne s jedálňou a obývacou izbou, chodby, kúpeľne, dvoch spální, priestrannej loggie a strešnej terasy s nádherným otvoreným výhľadom na more.
– čistá obytná plocha: 71,56 m²
– prístup: vonkajšie schodisko
Apartmán je vhodný na rekreačné využitie, celoročné bývanie aj turistický prenájom, pre klientov, ktorí hľadajú pokojné prostredie, modernú architektúru a blízkosť mora.
Dostupné apartmány v projekte
Menšia budova:
– S3 – penthouse, 2. poschodie, 71,56 m², 2 spálne, balkón, strešná terasa
Cena: 350 000 €
Väčšia budova:
– S3, 1. poschodie, 50,19 m², 2 spálne, balkón
Cena: 220 000 €
– S5, 2. poschodie, 66,29 m², 2 spálne, balkón, strešná terasa
Cena: 320 000 €
– S6, 2. poschodie, 66,37 m², 2 spálne, balkón, strešná terasa
Cena: 330 000 €
Dodatočné náklady, ktoré znáša kupujúci nehnuteľnosti v Chorvátsku: daň z prevodu nehnuteľnosti (3 % z hodnoty nehnuteľnosti), poplatok za sprostredkovanie (3 % z hodnoty nehnuteľnosti), poplatky za advokáta, poplatok za registráciu nehnuteľnosti (1 % z hodnoty nehnuteľnosti + DPH).