Apartmány pri Splite
- 700 m od centra
- 800 m od mora
- elektrina, voda, kanalizácia
Na predaj ponúkame apartmán v luxusnej novostavbe v Kaštel Kambelovac, len 800 metrov od mora, s výbornou polohou medzi mestami Split a Trogir. Lokalita poskytuje rýchlu dostupnosť ku kompletnej občianskej vybavenosti, plážam, reštauráciám aj službám, pričom Letisko Split je vzdialené približne 8 km.
Rezidenčný projekt pozostáva z dvoch moderných obytných budov, pričom každá z nich ponúka sedem funkčne a kvalitne navrhnutých apartmánov. Dôraz je kladený na modernú architektúru, otvorené dispozície, dostatok prirodzeného svetla a súkromie obyvateľov.
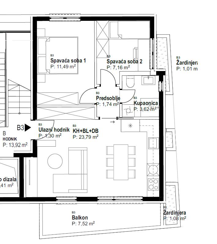
Apartmán B3 sa nachádza na 1. poschodí južnej budovy a má celkovú obytnú plochu 51 m². Dispozičné riešenie zahŕňa vstupnú chodbu, predsieň, kúpeľňu, dve spálne a otvorený denný priestor s kuchyňou, jedálňou a obývacou izbou. Súčasťou apartmánu je balkón s výhľadom na more, ideálny na každodenný relax.
K apartmánu prislúcha 1 garážové parkovacie miesto a sklad, ktoré sú už zahrnuté v cene.
Projekt je realizovaný podľa vysokých štandardov modernej výstavby a je vhodný na celoročné bývanie, rekreačné využitie aj ako investícia na turistický prenájom.
Dostupné apartmány v projekte:
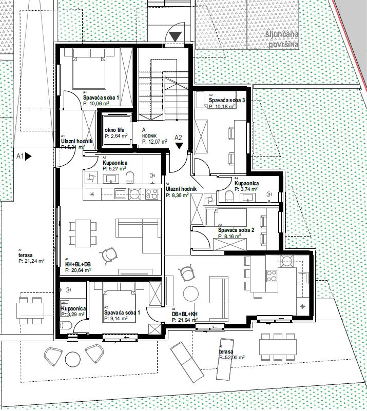
– A1, prízemie: 52 m², 1 spálňa, kúpeľňa, obývacia izba s kuchyňou a jedálňou, terasa, záhrada, garážové parkovacie miesto, sklad. Cena: 230 000 €
– A2, prízemie: 91 m², 3 spálne, 2 kúpeľne, obývacia izba s kuchyňou a jedálňou, terasa, záhrada, garážové parkovacie miesto, sklad. Cena: 380 000 €
– B3, 1. poschodie (južná budova): 51 m², 2 spálne, kúpeľňa, balkón, garážové parkovacie miesto, sklad. Cena: 235 000 €
Kvalitná novostavba, výborná poloha a blízkosť mora robia z tejto ponuky stabilnú a dlhodobo hodnotnú investíciu.
Dodatočné náklady, ktoré znáša kupujúci nehnuteľnosti v Chorvátsku: daň z prevodu nehnuteľnosti (3 % z hodnoty nehnuteľnosti), poplatok za sprostredkovanie (3 % z hodnoty nehnuteľnosti), poplatky za advokáta, poplatok za registráciu nehnuteľnosti (1 % z hodnoty nehnuteľnosti + DPH).