Nové luxusné rezidenčné bývanie pri mori – Zadar, Borik/100 m od pláže
- Prestížna lokalita oproti Marine Borik
- 100 m od pláže, 3,6 km od centra Zadaru
- 2 budovy, podzemná garáž, výťahy
- Dokončenie: leto 2026
- Vysoký investičný potenciál
- Elektrina, voda, kanalizácia
- výhľad na more
Predstavujeme nový luxusný rezidenčný projekt situovaný pri mori v najexkluzívnejšej západnej časti Zadaru – priamo oproti Marine Borik a v tesnej blízkosti známeho rezortu Falkensteiner s piesočnatou plážoua kompletnou turistickou infraštruktúrou.
Projekt pozostáva z dvoch moderných budov navrhnutých s dôrazom na kvalitu výstavby, priestranné terasy a podzemné garáže s priamym prístupom výťahom do bytov. Ide o výnimočné spojenie dovolenkového komfortu, mestskej dostupnosti a dlhodobej investičnej hodnoty.
Byt M104 – prvé poschodie (budova M), 58,29 m² úžitkovej plochy, 1 spálňa, kúpeľňa, kuchyňa s jedálňou a obývacou časťou, krytá terasa – prístup zo spálne aj obývačky - cena: 378.885 €
Každému bytu prislúcha možnosť kúpy vonkajšieho parkovacieho miesta alebo garážového státia. Kupujúci majú v tejto fáze výstavby možnosť výberu interiérových materiálov podľa vlastného štýlu.
Disponibilné byty na predaj:
BUDOVA M – prízemie
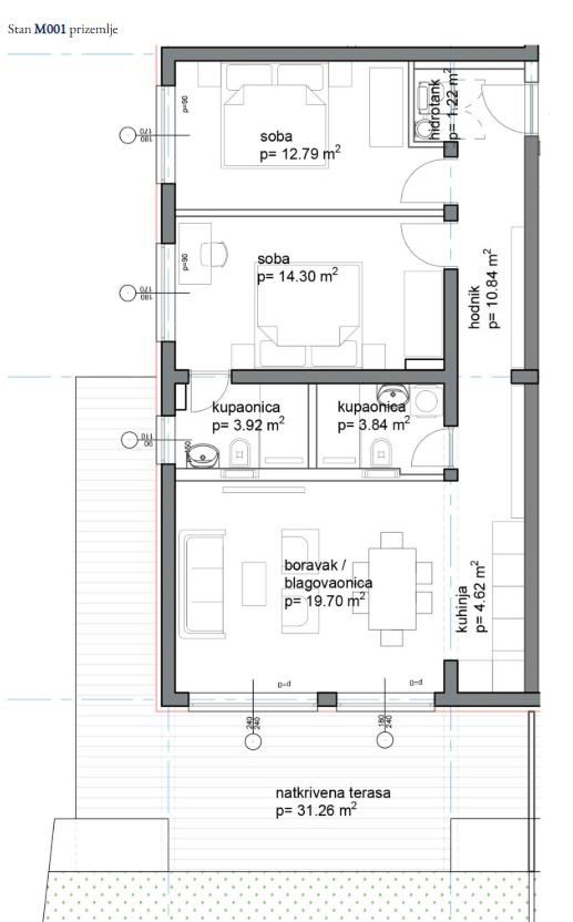
M001 – 95,74 m² | 2 spálne | terasa, záhrada | 622.310 €
M003 – 163,86 m² | 2 spálne | terasa, záhrada | 1.065.090 €
M004 – 75,28 m² | 1 spálňa | terasa, záhrada | 451.680 €
M005 – 86,76 m² | 1 spálňa | terasa, záhrada | 520.560 €
M006 – 84,54 m² | 1 spálňa | terasa, záhrada | 507.240 €
M007 – 111,05 m² | 2 spálne | terasa, záhrada | 666.300 €
BUDOVA M – 1. poschodie
M104 – 58,29 m² | 1 spálňa | terasa | 378.885 €
M105 – 70,48 m² | 1 spálňa | terasa | 458.120 €
M106 – 71,30 m² | 1 spálňa | terasa | 463.450 €
BUDOVA M – 3. poschodie (penthouse)
M304 – 209,96 m² | 3 spálne | krytá + strešná terasa | 1.679.680 €
BUDOVA Z – prízemie a poschodia
Z002 – 76,84 m² | 1 spálňa | terasa, záhrada | 461.040 €
Z003 – 69,82 m² | 1 spálňa | terasa, záhrada | 418.920 €
Z005 – 67,45 m² | 1 spálňa | terasa, záhrada | 438.425 €
Z101 – 79,57 m² | 1 spálňa | terasa | 517.205 €
Z102 – 70,85 m² | 1 spálňa | terasa | 460.525 €
Z103 – 62,35 m² | 1 spálňa | terasa | 405.275 €
Z105 – 61,70 m² | 1 spálňa | terasa | 431.900 €
Z106 – 123,39 m² | 3 spálne | terasa | 863.730 €
BUDOVA Z – penthousy
Z302 – 155,46 m² | 2 spálne | terasa, strešná terasa | 1.243.680 €
Z303 – 172,94 m² | 2 spálne | terasa, strešná terasa | 1.383.520 €
Dodatočné náklady, ktoré znáša kupujúci nehnuteľnosti v Chorvátsku: daň z prevodu nehnuteľnosti (3 % z hodnoty nehnuteľnosti), poplatok za sprostredkovanie (3 % z hodnoty nehnuteľnosti), poplatky za advokáta, poplatok za registráciu nehnuteľnosti (1 % z hodnoty nehnuteľnosti + DPH).