Moderný apartmán v novostavbe v Primoštene – iba 750 m od mora
- výťah
- výhľad na more
- elektrina, voda, kanalizácia
- klimatizácia, podlahové kúrenie
Na predaj je byt v novej, moderne navrhnutej budove v jednej z najatraktívnejších lokalít Primoštenu. Projekt sa nachádza len 750 metrov vzdušnou čiarou od mora, pláže a centra mesta. Letisko Split je vzdialené 32 km.
Tento projekt je koncipovaný tak, aby poskytoval maximálne pohodlie pre celoročné bývanie, rekreačné využitie aj stabilnú investíciu na turistický prenájom. Budova má výťah prepojený so všetkými podlažiami vrátane garáží. Každý byt disponuje vlastným garážovým parkovacím miestom a skladom.
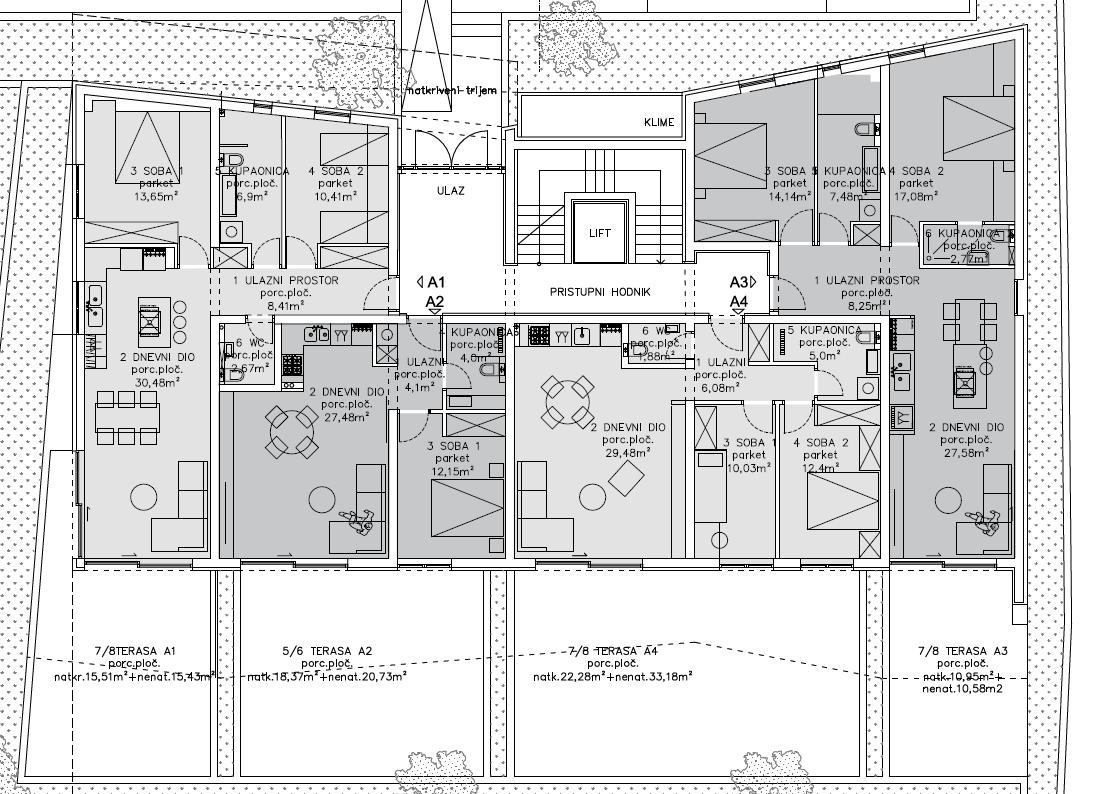
Byt A2 – 60,67 m² | prízemie | terasa
Byt sa nachádza na prízemí a ponúka funkčne riešený priestor s modernými štandardmi. Dispozícia zahŕňa vstupnú chodbu, priestrannú kúpeľňu, samostatné WC, spálňu a dennú časť spájajúcu kuchyňu, jedáleň a obývaciu izbu s výstupom na čiastočne krytú terasu.
Vybavenie a štandard
- hliníkové okná s termoizolačným sklom a elektrickými roletami
- podlahové vykurovanie v kúpeľniach
- protipožiarne a bezpečnostné vstupné dvere
- protišmyková keramika v interiéri aj exteriéri (výber možný)
- klimatizácia všetkých miestností – systém v podhľadoch
- LED osvetlenie v celom projekte
- tepelnoizolačná fasáda (kamenná vlna 10 cm)
- príprava na elektrické nabíjačky pri všetkých garážových miestach
Predpokladaný termín dokončenia a možnosť nasťahovania: 1. júl 2026.
Byty dostupné na predaj
Prízemie
A1 – 81,96 m², 2 spálne, kúpeľňa, WC, terasa – 375 000 €
A2 – 60,67 m², 1 spálňa, kúpeľňa, terasa – 265 000 €
A3 – 83,10 m², 2 spálne, kúpeľňa, WC, terasa – 375 000 €
A4 – 82,36 m², 2 spálne, kúpeľňa, WC, terasa – 330 000 €
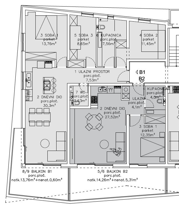
1. poschodie
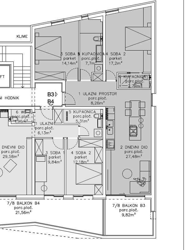
B1 – 86,45 m², 3 spálne, kúpeľňa, WC, balkón – 390 000 €
B3 – 80,13 m², 2 spálne, 2 kúpeľne, balkón – 320 000 €
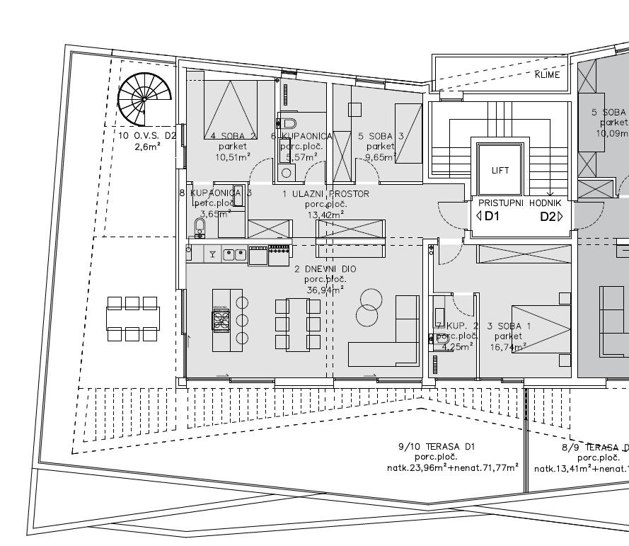
3. poschodie
D1 – 130,23 m², penthouse, 3 spálne, 3 kúpeľne, terasa – 790 000 €
Dodatočné náklady, ktoré znáša kupujúci nehnuteľnosti v Chorvátsku: daň z prevodu nehnuteľnosti (3 % z hodnoty nehnuteľnosti), poplatok za sprostredkovanie (3 % z hodnoty nehnuteľnosti), poplatky za advokáta, poplatok za registráciu nehnuteľnosti (1 % z hodnoty nehnuteľnosti + DPH).