Apartmány na Murteri
- podlahové kúrenie
- klimatizácia
- voda, elektrina
- energetická trieda A
Nová mestská budova na krásnom ostrove Murter poskytuje dokonalý domov pre tých, ktorí hľadajú pokoj a prírodné krásy. Nachádza sa v prvom rade pri mori a ponúka neodolateľný výhľad na krištáľovo čisté more a nádherné pláže, ktoré Murter ponúka. Ostrov je spojený s pevninou mostom, ktorý umožňuje ľahký prístup.
Budova pozostáva celkovo z 8 bytov, pričom začiatok výstavby je naplánovaný na jeseň 2024, pričom obsadenosť je plánovaná na jar 2026.
Pri výstavbe budú použité kvalitné materiály a zariadenia vrátane kvalitnej keramiky, klimatizácií v každej miestnosti, podlahového vykurovania systémom vodného tepelného čerpadla, moskytiér na všetkých otvoroch a ISO skla, čím sa zabezpečí pohodlný a moderný priestor na bývanie .
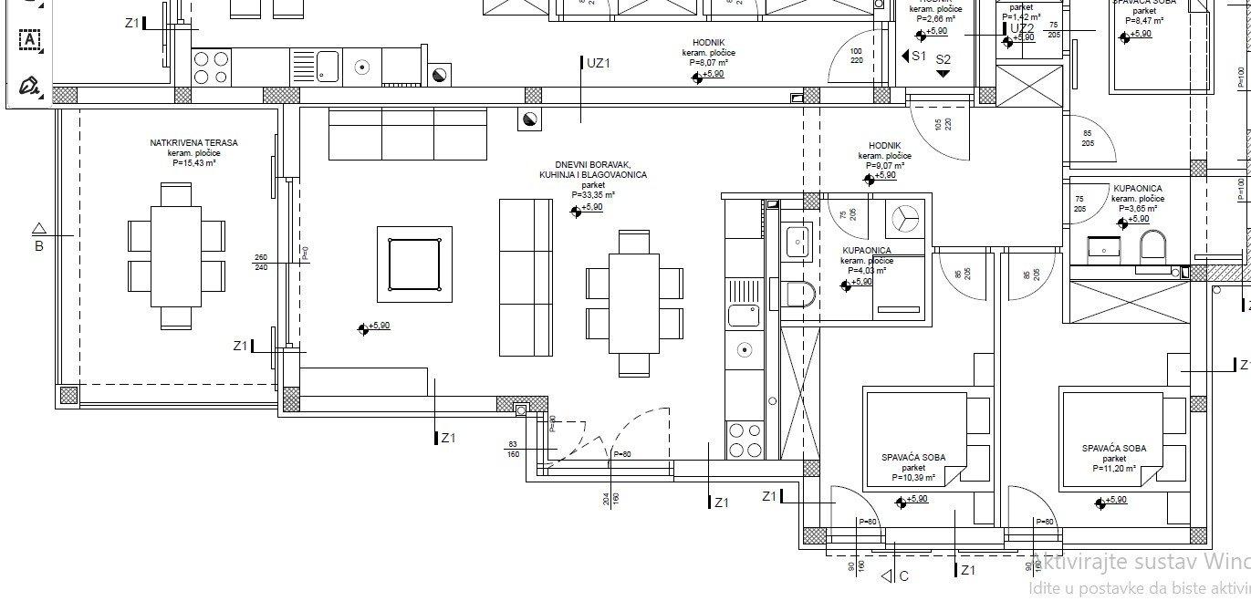
Byt S4 s rozlohou 84,53 m² sa nachádza na druhom poschodí budovy. Pozostáva z obývacej izby, kuchyne a jedálne, chodby, troch spální, šatníka, 2 kúpeľní a terasy, ktorá je ideálna na užívanie si vonku a relax s nádherným výhľadom na more.
Táto jedinečná možnosť kúpy bytu v Murteri ponúka dokonalú kombináciu moderného života a prírodných krás a vytvára ideálne miesto na únik od každodenného stresu a pokoj a pohodu.
Byty na predaj:
SUTERÉN:
A1: 51,11 m2; 1 spálňa, kúpeľňa, terasa, záhrada 14,84 m2. CENA: 298 792 €.
A2: 45,82 m2; 1 spálňa, kúpeľňa, terasa, záhrada 45,79 m2. CENA: 290 524 €.
PRÍZEMIE:
A4: 69,13 m2; 2 izby, kúpeľňa, WC, terasa, záhrada 28,27 m2. CENA: 396 306 €.
1. POSCHODIE:
S2: 87,47 m2; 3 spálne, 2 kúpeľne, terasa. CENA: 531 888 €.
2. POSCHODIE:
S4: 84,53 m2; 3 spálne, 2 kúpeľne, terasa. CENA: 550 884 €.
Dodatočné náklady, ktoré znáša kupujúci nehnuteľnosti v Chorvátsku: daň z prevodu nehnuteľnosti (3 % z hodnoty nehnuteľnosti), poplatok za sprostredkovanie (3 % z hodnoty nehnuteľnosti), právne služby (1 % z hodnoty nehnuteľnosti + DPH).