Apartmány v Prišmotene
- podlahové kúrenie
- 750 m od mora a centra
- elektrina, voda, kanalizácia
Na predaj je apartmán v modernej novostavbe, na mimoriadne atraktívnej lokalite v Primoštene, len 750 metrov vzdušnou čiarou od mora, pláže a samotného centra mesta. Letisko Split je vzdialené 32 km.
Tento moderný projekt je navrhnutý pre špičkovú úroveň komfortu, či už hľadáte domov na celoročné bývanie, exkluzívnu nehnuteľnosť na dovolenku alebo kvalitnú investíciu na turistický prenájom.
Budova zahŕňa viacero luxusných bytov, ku každému bytu patrí vlastné garážové parkovacie miesto a sklad.
Objekt je vybavený výťahom, ktorý spája všetky podlažia vrátane garáže.
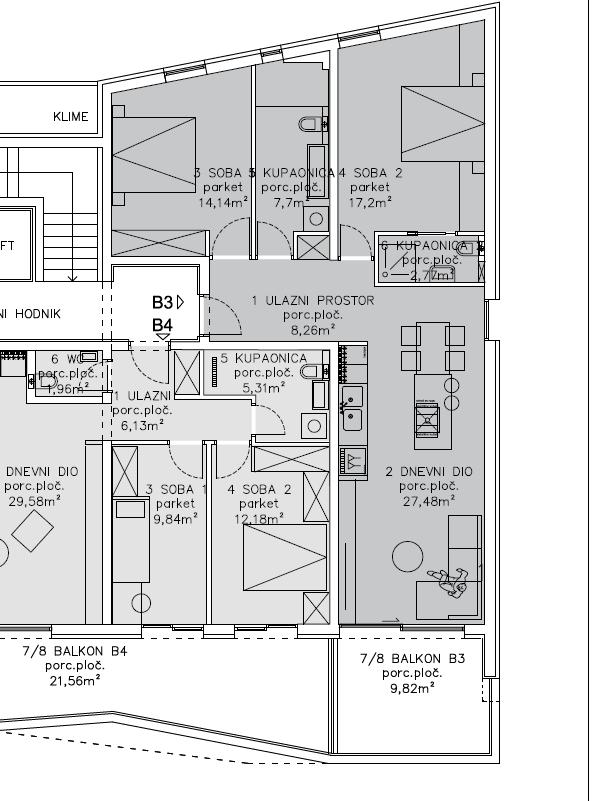
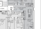
Byt B3, s rozlohou 80,13 m2, sa nachádza na prvom poschodí budovy a ponúka funkčný a moderný priestor. Skladá sa z vstupnej časti, kúpeľne, dvoch spální a otvoreného denného priestoru, ktorý spája kuchyňu, jedáleň a obývaciu izbu s východom na balkón – ideálne miesto na relax a užívanie si vonkajšieho prostredia.
Špičkové vybavenie a materiály:
- Hliníkové stolarstvo s termoizolačným sklom a elektrickými roletami
- Podlahové kúrenie v kúpeľniach
- Protipožiarne a bezpečnostné vstupné dvere
- Protisklzová keramika v bytoch a na terasách (možnosť výberu dizajnu)
- Klimatizácia všetkých miestností – systém skrytý v podhľadoch
- LED osvetlenie v interiéri aj exteriéri
- Termo fasáda (kamenná vlna 10 cm)
- Príprava na elektrické nabíjačky na všetkých garážových miestach
Predpokladaný termín dokončenia a možnosť nasťahovania je 1. júla 2026.
Apartmány dostupné na predaj:
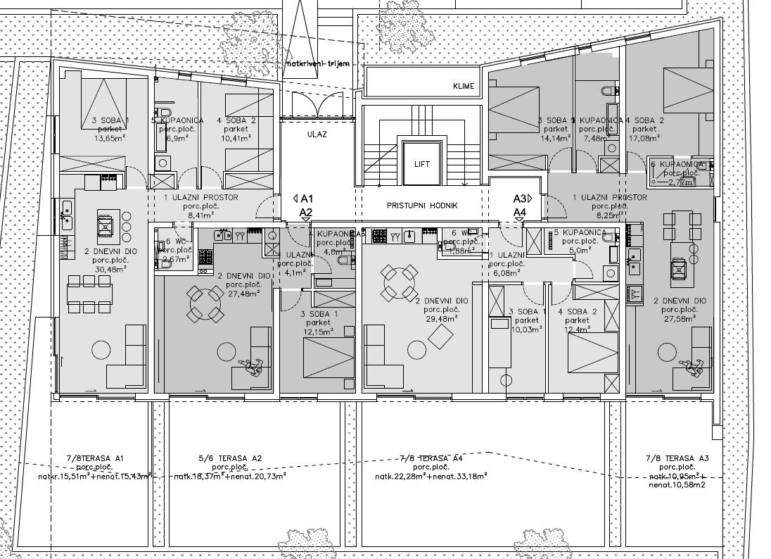
Prízemie:
A1: 81,96 m2 netto, 2 spálne, kúpeľňa, WC, terasa. Cena: 375 000 €
A2: 60,67 m2 netto, 1 spálňa, kúpeľňa, terasa. Cena: 265 000 €
A3: 83,10 m2 netto, 2 spálne, kúpeľňa, WC, terasa. Cena: 375 000 €
A4: 82,36 m2 netto, 2 spálne, kúpeľňa, WC, terasa. Cena: 330 000 €
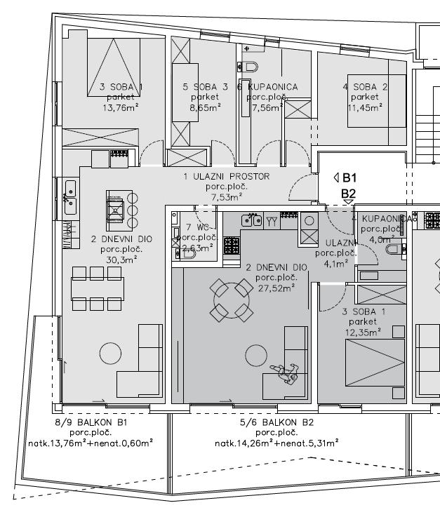
1. poschodie
B1: 86,45 m2 netto, 3 spálne, kúpeľňa, WC, balkón. Cena: 390 000 €
B3: 80,13 m2 netto, 2 spálne, 2 kúpeľne, balkón. Cena: 320 000 €
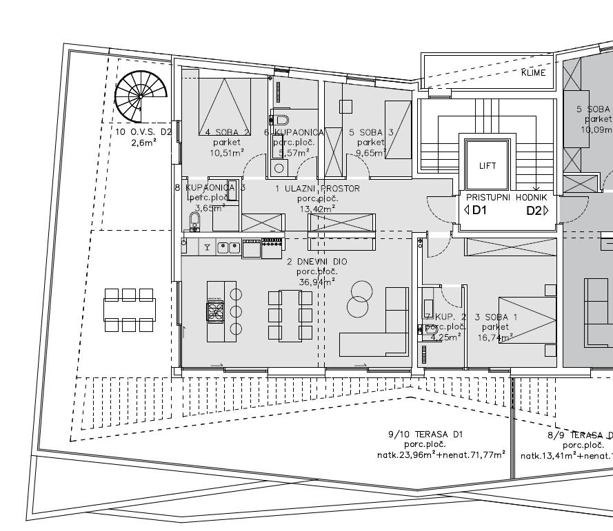
3. poschodie
D1, penthouse: 130,23 m2 netto, 3 spálne, 3 kúpeľne, terasa. Cena: 790 000 €
Dodatočné náklady, ktoré znáša kupujúci nehnuteľnosti v Chorvátsku: daň z prevodu nehnuteľnosti (3 % z hodnoty nehnuteľnosti), poplatok za sprostredkovanie (3 % z hodnoty nehnuteľnosti), poplatky za advokáta, poplatok za registráciu nehnuteľnosti (1 % z hodnoty nehnuteľnosti + DPH).