Moderná novostavba na výbornej lokalite – 1 500 m od mora a pláže v Makarskej
elektrina, voda, kanalizácia
výťah
garáž
Na predaj je luxusný apartmán S4 nachádzajúci sa na 1. poschodí novostavby v atraktívnej časti Makarskej. Apartmán má čistú obytnú plochu 78,19 m² a ponúka praktické a funkčné dispozičné riešenie.
Dispozícia bytu zahŕňa vstupnú chodbu, priestrannú obývaciu izbu, kuchyňu s jedálňou a výstupom na lodžiu, dve spálne a dve kúpeľne. K bytu prislúcha jedno garážové parkovacie miesto, ktoré je zahrnuté v cene.
Bytový dom pozostáva z prízemia a troch nadzemných podlaží s celkovým počtom 6 bytových jednotiek. Pri výstavbe budú použité kvalitné materiály a moderné technológie, samozrejmosťou je výťah, ktorý zvyšuje komfort bývania.
Dostupné byty v projekte:
PRÍZEMIE
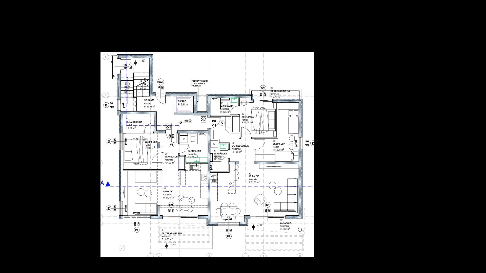
S1 (62,13 m²) – vstupná chodba, obývacia časť, spálňa, kúpeľňa, šatník, terasa, sklad, vonkajšie parkovacie miesto
Cena: 202 072 €
S2 (77,17 m²) – vstupná chodba, obývacia izba, 2 spálne, 2 kúpeľne, terasa, lodžia, garážové parkovacie miesto
Cena: 348 344 €
1. POSCHODIE
S3 (52,95 m²) – vstupná chodba, obývacia časť, spálňa, šatník, kúpeľňa, lodžia, sklad, vonkajšie parkovacie miesto
Cena: 183 500 €
S4 (78,19 m²) – vstupná chodba, obývacia časť, 2 spálne, 2 kúpeľne, lodžia, garážové parkovacie miesto
Cena: 266 280 €
2. POSCHODIE
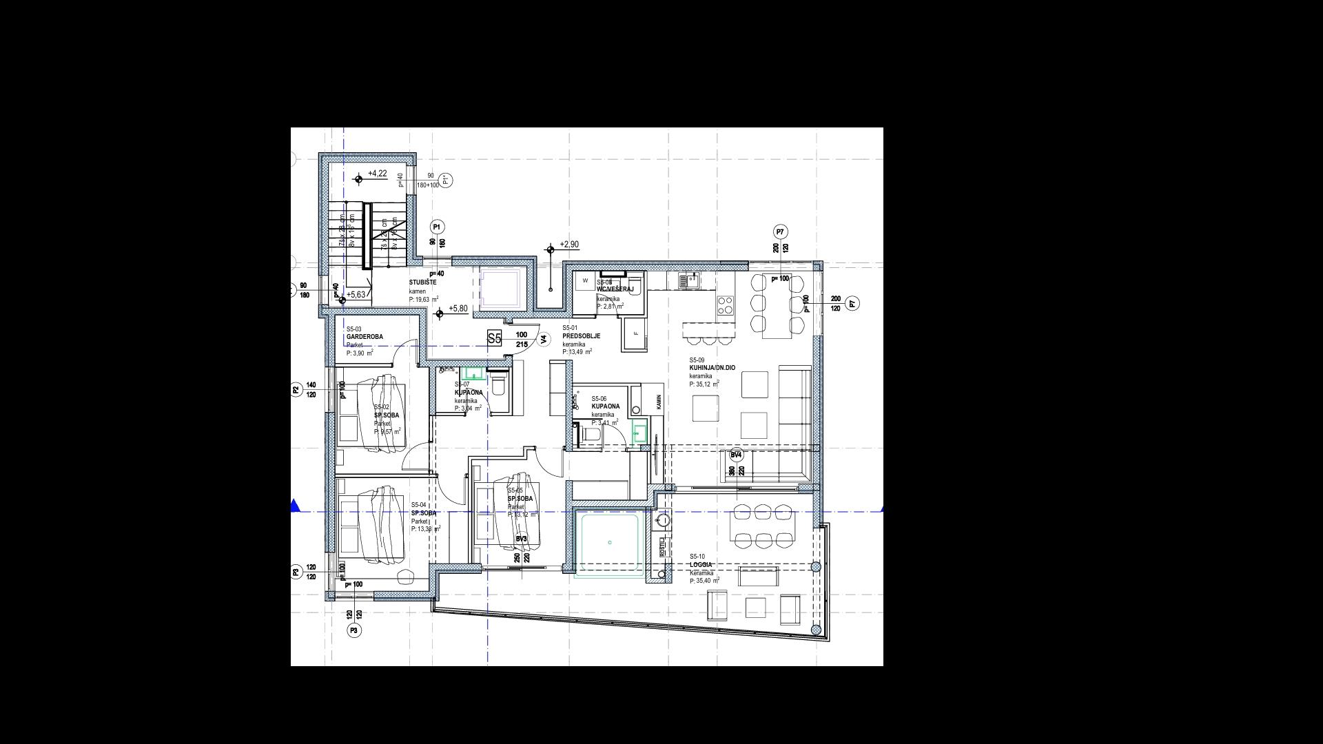
S5 (133,19 m²) – vstupná chodba, obývacia časť, 3 spálne, šatník, 2 kúpeľne, WC/práčovňa, lodžia, garážové + vonkajšie parkovacie miesto
Cena: 482 686,67 €
3. POSCHODIE
S6 (133,19 m²) – vstupná chodba, obývacia časť, 3 spálne, šatník, 2 kúpeľne, WC/práčovňa, lodžia, garážové + vonkajšie parkovacie miesto
Cena: 510 124 €
Dodatočné náklady, ktoré znáša kupujúci nehnuteľnosti v Chorvátsku: daň z prevodu nehnuteľnosti (3 % z hodnoty nehnuteľnosti), poplatok za sprostredkovanie (3 % z hodnoty nehnuteľnosti), poplatky za advokáta, poplatok za registráciu nehnuteľnosti (1 % z hodnoty nehnuteľnosti + DPH).