Apartmán na Čiove
- výhľad na more
- kliamatizácia
- voda, elektrina
- 200 m od mora
- energetická trieda A
Moderná novostavba s bazénom v atraktívnej lokalite 200 m od mora a pláže na krásnom ostrove Čiovo, spojená mostom s mestom Trogir UNESCO.
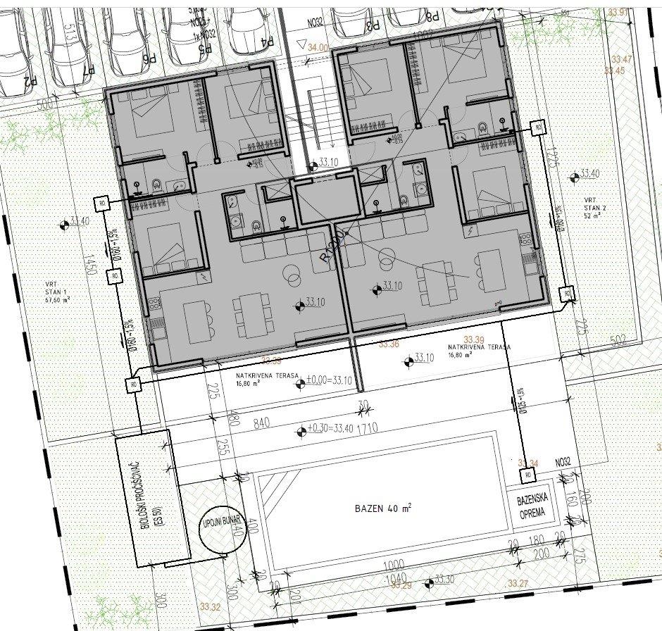
Byt sa nachádza v suteréne novej elegantnej budovy.
Úžitková plocha bytu je 85,85 m2. Pozostáva z chodby, kuchyne/obývačky, troch spální, dvoch kúpeľní a balkóna. K bytu prislúcha záhrada 67,60 m2, ideálna pre vlastnú oázu zelene a spoločenské stretnutia s rodinou a priateľmi.
Budova pozostáva zo štyroch podlaží s celkom 6 bytmi. Na každom podlaží sú dva trojizbové byty s rovnakým usporiadaním izieb. Byty v suteréne majú vlastnú záhradu a strešné byty na druhom poschodí majú strešnú terasu.
Ďalším benefitom je spoločný bazén pred budovou, ktorý je ideálnym miestom na schladenie v horúcich letných dňoch.
Každý apartmán má vlastné parkovacie miesto.
Budova je momentálne vo výstavbe a plánované ukončenie výstavby je 1. júla 2024.
Atraktívna lokalita, blízko krásnych pláží, výhľad na krištáľovo čisté more, robí z tohto apartmánu ideálnu voľbu pre milovníkov stredomorskej atmosféry a rozhodne má veľký potenciál na výhodný turistický prenájom.
Ostatné byty v dome na predaj:
2. POSCHODIE: S7, S8; 116 m2; chodba, kuchyňa/obývacia izba, tri spálne, dve kúpeľne, balkón, strešná terasa 102 m2. CENA: 500 000 €.
Dodatočné náklady, ktoré znáša kupujúci nehnuteľnosti v Chorvátsku: daň z prevodu nehnuteľnosti (3 % z hodnoty nehnuteľnosti), poplatok za sprostredkovanie (3 % z hodnoty nehnuteľnosti), poplatky za advokáta, poplatok za registráciu nehnuteľnosti (1 % z hodnoty nehnuteľnosti + DPH).